[prev][index][next]

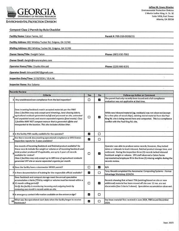
Compost Class 2 Permit-by-Rule Checklist

PV
Notice of Violation, Caton Farms, LLC, Permit No. PBR-010-0020(CO)
19 February 2026
 
Compost Class 2 Permit-by-Rule Checklist
bigger PDF