[prev][index][next]

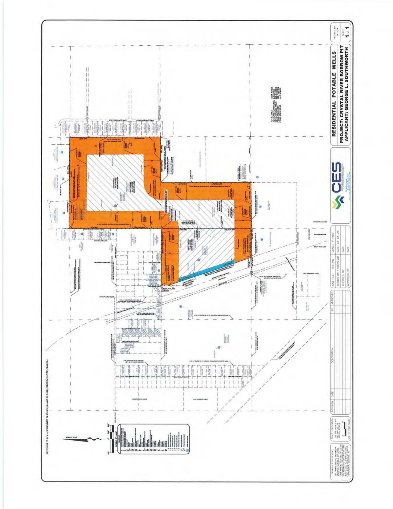
Map: Residential Potable Wells, Project: Crystal River Borrow Pit

Coutu-Geotech-Hydro-Mitigation-Plan-2025-02-22
Comment and CWA Request re Suncoast Parkway 2 Seg 3A --Stop the Sand Mine Committee
6 November 2025
 
Map: Residential Potable Wells, Project: Crystal River Borrow Pit
smaller PDF