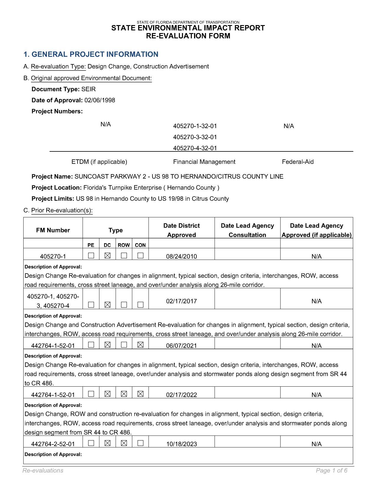
[prev][index][next]

Project Limits: US 98 in Hernando County to US 19/98 in Citrus County

STATE-ENVIRONMENTAL-IMPACT-REPORT-RE-EVALUATION-FORM-2024-08-01
Comment and CWA Request re Suncoast Parkway 2 Seg 3A --Stop the Sand Mine Committee
6 November 2025
 
Project Limits: US 98 in Hernando County to US 19/98 in Citrus County
smaller PDF