Received yesterday, a comment against the huge borrow pit proposed in a horse area, uphill from the Crystal River, in Citrus County, Florida, to build another segment of the unnecessary Suncoast Parkway toll road. That segment 3A would be another stop towards continuing up across the Suwannee River and other sensitive wetlands all the way to the GA-FL line towards Thomasville, Georgia.
Hurricane evacuation is the usual excuse for this toll road, but solar panels and batteries for houses and businesses would cost less and would mean many people would not have to evacuate and would not be without power for weeks as happens now after every hurricane.
You can also send a public comment, to:
PublicMail.CESAJ-CC@usace.army.mil
Comment and CWA Request, re Suncoast Parkway 2 Seg 3A –Stop the Sand Mine Committee, 2025-11-06
From: Stop the Sand Mine In Citrus County
Re: Suncoast Parkway 2 Segment 3A (FPID 442764-2)
Formal Public Comment and Request for Clean Water Act §404(q) Review
November 6, 2025
Dear Regulatory Division:
Please find attached the Formal Public Comment “A permit that Never Existed” Statement for the Record submitted by the Stop the Sand Mine Committee regarding the proposed Suncoast Parkway 2 Segment 3A (FPID 442764-2), and the related Southworth sand mine property purchase now being pursued by FDOT using public tax dollars.
The Committee submits this comment to the U.S. Army Corps of Engineers, FDOT, FDEP, and EPA Region 4 for formal entry into the administrative record.
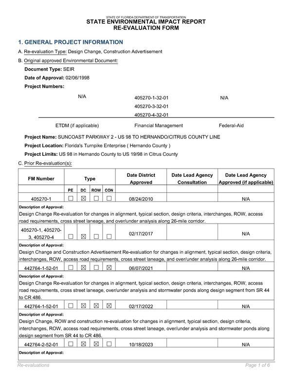
Our filing documents material misrepresentations in FDOT’s State Environmental Impact Report (SEIR) Re-Evaluation, approved August 2, 2024, which incorrectly listed “State 404 Permit — Obtained 05/10/2023.”
The record shows that the only agency action on that date was a Florida DEP “No Permit Required” (NPR) letter, not a permit issuance.
This misclassification allowed the project—and now a taxpayer-funded land acquisition for sand mining purposes—to advance without lawful review under §§404 and 401 of the Clean Water Act.
We therefore request that the U.S. Army Corps of Engineers (Jacksonville District) exercise its oversight authority under 33 U.S.C. §1344(q) to:
- Review this project and re-assert federal §404 jurisdiction;
- Direct FDEP and FDOT to initiate corrective enforcement and compliance actions; and
- Require that all project and acquisition activities relying on the misclassified entry be suspended pending a valid §404 permit and §401 certification.
Please note: While we have obtained the May 10, 2023 “No Permit Required” (NPR) determination from another source, we have been unable to access it through the official public-records link that was provided. Other related documents were accessible, yet this specific record remains unavailable despite repeated attempts through the agency portal and with staff assistance.
This lack of transparency—consistent with other difficulties encountered during this process—and incomplete online record-keeping prevent full verification of environmental compliance, particularly with respect to floodplain conditions and the Priority Focus Area (PFA) designation. We therefore request that all missing records—including any §404 or §401 files, floodplain data, and aquifer evaluations—be disclosed in full and made publicly accessible.We respectfully request written acknowledgment of receipt within 30 days and confirmation that this submission has been entered into the official administrative record.
Thank you for your attention to this matter and for ensuring proper federal oversight in protection of the Crystal River—Kings Bay Outstanding Florida Spring system and the Floridan aquifer.
Sincerely,
Colleen Farmer, Chair
Tony Ayo, Co-Chair
David Bishop, Vice Chair
Stop the Sand Mine Committee
Beverly Hills, Florida
stopthesandminecc@gmail.com
Additional documents and photos may be requested and added will also be sent in a separate email.
See also The Citrus Insider, facebook, November 5 at 9:03 AM,
This is crazy. These pictures were sent to me by the Stop the Sand Mine Committee (www.stopthesandmine.com). They are pictures of an excavator that apparently dug into the surficial aquifer. I was told the hole filled up very quickly and the operator of the excavator had to swim out of it. It remained submerged in this spot for several days until they could get a large crane to lift it out.
Why is this a big deal? Because this is part of the parkway construction and near the area where the FDOT wants to buy land to do a borrow pit to get sand for the parkway. Remember, this project was denied by the special master a few months ago and pulled just before the BOCC meeting. If the FDOT buys it, they can bypass local zoning regulations and essentially do what they want to do.
This area flows into Crystal River and Kings Bay. There have been observations of springs/wetlands on the Southworth property, yet FDOT seems eager to buy that land for the parkway expansion.
Obviously, these pictures show the aquifer may be closer than they thought. Hopefully this makes them rethink this location for a sand mine and go elsewhere for the fill dirt needed for the expansion.
The seven documents Stop the Sand Mine sent are all on the WWALS website.
Images of each page are below. Click on any small image to see a larger version.
-jsq, John S. Quarterman, Suwannee RIVERKEEPER®
You can help with clean, swimmable, fishable, drinkable, water in the 10,000-square-mile Suwannee River Basin in Florida and Georgia by becoming a WWALS member today!
https://wwals.net/donations/
A-Permit-That-Never-Existed-Formal-Public-Comment-2025-11-06
I. Executive Summary – A Permit That Never Existed
PDF
II. Core Evidence of False Representation and Inadequate Jurisdictional Basis
PDF
2) Legal Distinction and Violation 3) Why the 2023 WOTUS Veri cation Is Inadequate
PDF
4) Conflicts with Physical Evidence 5) Systemic Implications
PDF
III. Independent Evidence of Environmental Change and Omission
PDF
IV. Pattern of Segmentation and Wetland Misclassification
PDF
V. New Incident Near Southworth Site: Excavator Submersion and Aquifer Exposure
PDF
B) Observed Conditions and Technical Interpretation C) “Slide-In” Possibility and Groundwater Persistence
PDF
D) Hydrological and Environmental Risk VI. Accountability and Required Administrative Action
PDF
Requested Administrative Actions
PDF
VII. Federal Statutory Conflicts and Violations
PDF
2. NEPA / CEQ Regulations 3. OFS Priority Focus Area and Floodplain Standards 4. Duty of Accuracy and Transparency
PDF
Requested Federal Actions and Conclusion
PDF
When Florida state agencies misclassify wetlands and ignore aquifer warnings, federal law requires intervention. We respectfully request that this comment be entered into the administrative record and that written con rmation of receipt be provided to our Committee pursuant to §404(q) and §119.07, F.S.
PDF
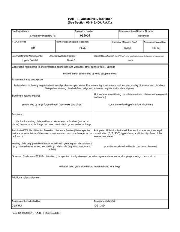
Part-I-Qualitative-Description-2024-10-21
Habitat for wading birds and herps. Water source for deer (tracks on shore). No surface discharge but does contribute to groundwater recharge.
PDF
Current condition: Water quantity and quality appear near optimal for the wetland. Minor ditching/scraping along perimeter draining into wetland. Contributing area is forested and undeveloped except a few small dirt roads (jeep trails). Vegetation community composition and zonation are consistent with optimal water environment. With impact: Excavated lake
PDF
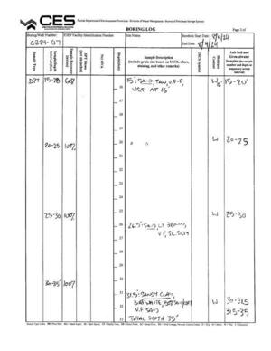
_3_4_25-FDOT-Test-Lab-results-Response-to-RAI-6_27_25-3KS-Family-LLLP-and-Test-Lab-March-3-2025–CRBP-Application-no-912905-fha0ay2a-copy
FDOT-Test-Lab-Results-2025-08-11
FTE-No-Permit-Required-SunCoast-FLORIDA-2023-05-10
Based on a review of the information submitted and site inspection conducted by staff, the Department has verified that the activity, as proposed does not involve discharge of dredged or fill material into the waters of the United States and therefore, does not require a permit or other form of authorization under the State 404 Program, as described in Chapter 62-331, Florida Administrative Code (F.A.C.).
PDF
If the activities are not in compliance, you may be subject to enforcement action and possible penalties.
PDF
STATE-ENVIRONMENTAL-IMPACT-REPORT-RE-EVALUATION-FORM-2024-08-01
Project Limits: US 98 in Hernando County to US 19/98 in Citrus County
PDF
emails-re-WOTUS-Jan-2023-Nexus-18
Below is the link to the Suncoast NPR request in the Central DOT folder. It will be coded NPR 1. file://floridadep/data/wrm/water/SLER/404%20DOT/Central/Suncoast%20Parkway%20NPR
PDF
The No Permit Required Request and associated WOTUS Information Form have been uploaded to the DEP FTP site under Folder 404FDOT/442764‐2 Suncoast Pkwy 2_3A. ftp://ftp.dep.state.fl.us/pub/incoming/404FDOT/442764‐2%20Sunocast%20Pkwy%202_3A/
PDF
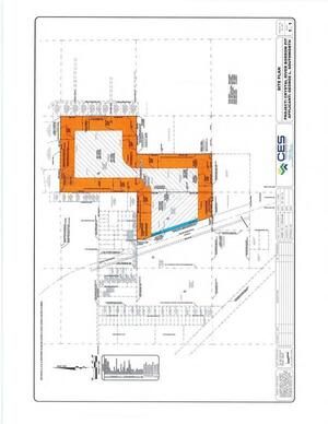
Coutu-Geotech-Hydro-Mitigation-Plan-2025-02-22
Map: Site Plan, Project: Crystal River Borrow Pit
PDF
Map: Residential Potable Wells, Project: Crystal River Borrow Pit
PDF
Map: Drilling Location Map, Project: Crystal River Borrow Pit
PDF
Map: Groundwater Elevation Contour Map, Project: Crystal River Borrow Pit
PDF
Short Link:

![[Submerged]](https://www.wwals.net/pictures/2025-11-06--stop-the-sand-mine-comment-suncoast-parkway-seg-2/577015883_122183201666538075_1325452331001806984_n.jpg)
![[Reaching]](https://www.wwals.net/pictures/2025-11-06--stop-the-sand-mine-comment-suncoast-parkway-seg-2/577027400_122183201558538075_4546431524281459145_n.jpg)
![[Lifting]](https://www.wwals.net/pictures/2025-11-06--stop-the-sand-mine-comment-suncoast-parkway-seg-2/577027446_122183201612538075_643234290953303845_n.jpg)
![[Page 1]](https://www.wwals.net/pictures/2025-11-06--stop-the-sand-mine-comment-suncoast-parkway-seg-2/_3_4_25-FDOT-Test-Lab-results-Response-to-RAI-6_27_25-3KS-Family-LLLP-and-Test-Lab-March-3-2025--CRBP-Application-no-912905-fha0ay2a-copy-0001.jpg)
![[Page 2]](https://www.wwals.net/pictures/2025-11-06--stop-the-sand-mine-comment-suncoast-parkway-seg-2/small/_3_4_25-FDOT-Test-Lab-results-Response-to-RAI-6_27_25-3KS-Family-LLLP-and-Test-Lab-March-3-2025--CRBP-Application-no-912905-fha0ay2a-copy-0002.jpg)
![[Page 3]](https://www.wwals.net/pictures/2025-11-06--stop-the-sand-mine-comment-suncoast-parkway-seg-2/small/_3_4_25-FDOT-Test-Lab-results-Response-to-RAI-6_27_25-3KS-Family-LLLP-and-Test-Lab-March-3-2025--CRBP-Application-no-912905-fha0ay2a-copy-0003.jpg)
![[Page 4]](https://www.wwals.net/pictures/2025-11-06--stop-the-sand-mine-comment-suncoast-parkway-seg-2/small/_3_4_25-FDOT-Test-Lab-results-Response-to-RAI-6_27_25-3KS-Family-LLLP-and-Test-Lab-March-3-2025--CRBP-Application-no-912905-fha0ay2a-copy-0004.jpg)
![[Page 5]](https://www.wwals.net/pictures/2025-11-06--stop-the-sand-mine-comment-suncoast-parkway-seg-2/small/_3_4_25-FDOT-Test-Lab-results-Response-to-RAI-6_27_25-3KS-Family-LLLP-and-Test-Lab-March-3-2025--CRBP-Application-no-912905-fha0ay2a-copy-0005.jpg)
![[Page 6]](https://www.wwals.net/pictures/2025-11-06--stop-the-sand-mine-comment-suncoast-parkway-seg-2/small/_3_4_25-FDOT-Test-Lab-results-Response-to-RAI-6_27_25-3KS-Family-LLLP-and-Test-Lab-March-3-2025--CRBP-Application-no-912905-fha0ay2a-copy-0006.jpg)
![[Page 7]](https://www.wwals.net/pictures/2025-11-06--stop-the-sand-mine-comment-suncoast-parkway-seg-2/small/_3_4_25-FDOT-Test-Lab-results-Response-to-RAI-6_27_25-3KS-Family-LLLP-and-Test-Lab-March-3-2025--CRBP-Application-no-912905-fha0ay2a-copy-0007.jpg)
![[Page 8]](https://www.wwals.net/pictures/2025-11-06--stop-the-sand-mine-comment-suncoast-parkway-seg-2/small/_3_4_25-FDOT-Test-Lab-results-Response-to-RAI-6_27_25-3KS-Family-LLLP-and-Test-Lab-March-3-2025--CRBP-Application-no-912905-fha0ay2a-copy-0008.jpg)
![[Page 9]](https://www.wwals.net/pictures/2025-11-06--stop-the-sand-mine-comment-suncoast-parkway-seg-2/small/_3_4_25-FDOT-Test-Lab-results-Response-to-RAI-6_27_25-3KS-Family-LLLP-and-Test-Lab-March-3-2025--CRBP-Application-no-912905-fha0ay2a-copy-0009.jpg)
![[Page 10]](https://www.wwals.net/pictures/2025-11-06--stop-the-sand-mine-comment-suncoast-parkway-seg-2/small/_3_4_25-FDOT-Test-Lab-results-Response-to-RAI-6_27_25-3KS-Family-LLLP-and-Test-Lab-March-3-2025--CRBP-Application-no-912905-fha0ay2a-copy-0010.jpg)
![[Page 11]](https://www.wwals.net/pictures/2025-11-06--stop-the-sand-mine-comment-suncoast-parkway-seg-2/small/_3_4_25-FDOT-Test-Lab-results-Response-to-RAI-6_27_25-3KS-Family-LLLP-and-Test-Lab-March-3-2025--CRBP-Application-no-912905-fha0ay2a-copy-0011.jpg)
![[Page 12]](https://www.wwals.net/pictures/2025-11-06--stop-the-sand-mine-comment-suncoast-parkway-seg-2/small/_3_4_25-FDOT-Test-Lab-results-Response-to-RAI-6_27_25-3KS-Family-LLLP-and-Test-Lab-March-3-2025--CRBP-Application-no-912905-fha0ay2a-copy-0012.jpg)
![[Page 13]](https://www.wwals.net/pictures/2025-11-06--stop-the-sand-mine-comment-suncoast-parkway-seg-2/small/_3_4_25-FDOT-Test-Lab-results-Response-to-RAI-6_27_25-3KS-Family-LLLP-and-Test-Lab-March-3-2025--CRBP-Application-no-912905-fha0ay2a-copy-0013.jpg)
![[Page 14]](https://www.wwals.net/pictures/2025-11-06--stop-the-sand-mine-comment-suncoast-parkway-seg-2/small/_3_4_25-FDOT-Test-Lab-results-Response-to-RAI-6_27_25-3KS-Family-LLLP-and-Test-Lab-March-3-2025--CRBP-Application-no-912905-fha0ay2a-copy-0014.jpg)
![[Page 15]](https://www.wwals.net/pictures/2025-11-06--stop-the-sand-mine-comment-suncoast-parkway-seg-2/small/_3_4_25-FDOT-Test-Lab-results-Response-to-RAI-6_27_25-3KS-Family-LLLP-and-Test-Lab-March-3-2025--CRBP-Application-no-912905-fha0ay2a-copy-0015.jpg)
![[Page 16]](https://www.wwals.net/pictures/2025-11-06--stop-the-sand-mine-comment-suncoast-parkway-seg-2/small/_3_4_25-FDOT-Test-Lab-results-Response-to-RAI-6_27_25-3KS-Family-LLLP-and-Test-Lab-March-3-2025--CRBP-Application-no-912905-fha0ay2a-copy-0016.jpg)
![[Page 17]](https://www.wwals.net/pictures/2025-11-06--stop-the-sand-mine-comment-suncoast-parkway-seg-2/small/_3_4_25-FDOT-Test-Lab-results-Response-to-RAI-6_27_25-3KS-Family-LLLP-and-Test-Lab-March-3-2025--CRBP-Application-no-912905-fha0ay2a-copy-0017.jpg)
![[Page 18]](https://www.wwals.net/pictures/2025-11-06--stop-the-sand-mine-comment-suncoast-parkway-seg-2/small/_3_4_25-FDOT-Test-Lab-results-Response-to-RAI-6_27_25-3KS-Family-LLLP-and-Test-Lab-March-3-2025--CRBP-Application-no-912905-fha0ay2a-copy-0018.jpg)
![[Page 19]](https://www.wwals.net/pictures/2025-11-06--stop-the-sand-mine-comment-suncoast-parkway-seg-2/small/_3_4_25-FDOT-Test-Lab-results-Response-to-RAI-6_27_25-3KS-Family-LLLP-and-Test-Lab-March-3-2025--CRBP-Application-no-912905-fha0ay2a-copy-0019.jpg)
![[Map: Existing Ground Elevations]](https://www.wwals.net/pictures/2025-11-06--stop-the-sand-mine-comment-suncoast-parkway-seg-2/small/_3_4_25-FDOT-Test-Lab-results-Response-to-RAI-6_27_25-3KS-Family-LLLP-and-Test-Lab-March-3-2025--CRBP-Application-no-912905-fha0ay2a-copy-0020.jpg)
![[Page 2]](https://www.wwals.net/pictures/2025-11-06--stop-the-sand-mine-comment-suncoast-parkway-seg-2/small/__8_24-SEIR-pg-5-404-permit-_STATE-ENVIRONMENTAL-IMPACT-REPORT-RE-EVALUATION-FORM-3A-442764-2-080224-swept_Reevaluation-0002.jpg)
![[Page 3]](https://www.wwals.net/pictures/2025-11-06--stop-the-sand-mine-comment-suncoast-parkway-seg-2/small/__8_24-SEIR-pg-5-404-permit-_STATE-ENVIRONMENTAL-IMPACT-REPORT-RE-EVALUATION-FORM-3A-442764-2-080224-swept_Reevaluation-0003.jpg)
![[Page 4]](https://www.wwals.net/pictures/2025-11-06--stop-the-sand-mine-comment-suncoast-parkway-seg-2/small/__8_24-SEIR-pg-5-404-permit-_STATE-ENVIRONMENTAL-IMPACT-REPORT-RE-EVALUATION-FORM-3A-442764-2-080224-swept_Reevaluation-0004.jpg)
![[Page 5]](https://www.wwals.net/pictures/2025-11-06--stop-the-sand-mine-comment-suncoast-parkway-seg-2/small/__8_24-SEIR-pg-5-404-permit-_STATE-ENVIRONMENTAL-IMPACT-REPORT-RE-EVALUATION-FORM-3A-442764-2-080224-swept_Reevaluation-0005.jpg)
![[Page 6]](https://www.wwals.net/pictures/2025-11-06--stop-the-sand-mine-comment-suncoast-parkway-seg-2/small/__8_24-SEIR-pg-5-404-permit-_STATE-ENVIRONMENTAL-IMPACT-REPORT-RE-EVALUATION-FORM-3A-442764-2-080224-swept_Reevaluation-0006.jpg)
![[Page 1]](https://www.wwals.net/pictures/2025-11-06--stop-the-sand-mine-comment-suncoast-parkway-seg-2/From-J-Coutu-Geotech-Hydro-Mitigation-Plan-reduced-file-size-2-0001.jpg)
![[Page 2]](https://www.wwals.net/pictures/2025-11-06--stop-the-sand-mine-comment-suncoast-parkway-seg-2/small/From-J-Coutu-Geotech-Hydro-Mitigation-Plan-reduced-file-size-2-0002.jpg)
![[Page 3]](https://www.wwals.net/pictures/2025-11-06--stop-the-sand-mine-comment-suncoast-parkway-seg-2/small/From-J-Coutu-Geotech-Hydro-Mitigation-Plan-reduced-file-size-2-0003.jpg)
![[Page 4]](https://www.wwals.net/pictures/2025-11-06--stop-the-sand-mine-comment-suncoast-parkway-seg-2/small/From-J-Coutu-Geotech-Hydro-Mitigation-Plan-reduced-file-size-2-0004.jpg)
![[Page 5]](https://www.wwals.net/pictures/2025-11-06--stop-the-sand-mine-comment-suncoast-parkway-seg-2/small/From-J-Coutu-Geotech-Hydro-Mitigation-Plan-reduced-file-size-2-0005.jpg)
![[Page 6]](https://www.wwals.net/pictures/2025-11-06--stop-the-sand-mine-comment-suncoast-parkway-seg-2/small/From-J-Coutu-Geotech-Hydro-Mitigation-Plan-reduced-file-size-2-0006.jpg)
![[Page 7]](https://www.wwals.net/pictures/2025-11-06--stop-the-sand-mine-comment-suncoast-parkway-seg-2/small/From-J-Coutu-Geotech-Hydro-Mitigation-Plan-reduced-file-size-2-0007.jpg)
![[Page 12]](https://www.wwals.net/pictures/2025-11-06--stop-the-sand-mine-comment-suncoast-parkway-seg-2/small/From-J-Coutu-Geotech-Hydro-Mitigation-Plan-reduced-file-size-2-0012.jpg)
![[Page 13]](https://www.wwals.net/pictures/2025-11-06--stop-the-sand-mine-comment-suncoast-parkway-seg-2/small/From-J-Coutu-Geotech-Hydro-Mitigation-Plan-reduced-file-size-2-0013.jpg)
![[Page 14]](https://www.wwals.net/pictures/2025-11-06--stop-the-sand-mine-comment-suncoast-parkway-seg-2/small/From-J-Coutu-Geotech-Hydro-Mitigation-Plan-reduced-file-size-2-0014.jpg)
![[Page 15]](https://www.wwals.net/pictures/2025-11-06--stop-the-sand-mine-comment-suncoast-parkway-seg-2/small/From-J-Coutu-Geotech-Hydro-Mitigation-Plan-reduced-file-size-2-0015.jpg)
![[Page 16]](https://www.wwals.net/pictures/2025-11-06--stop-the-sand-mine-comment-suncoast-parkway-seg-2/small/From-J-Coutu-Geotech-Hydro-Mitigation-Plan-reduced-file-size-2-0016.jpg)
![[Page 17]](https://www.wwals.net/pictures/2025-11-06--stop-the-sand-mine-comment-suncoast-parkway-seg-2/small/From-J-Coutu-Geotech-Hydro-Mitigation-Plan-reduced-file-size-2-0017.jpg)
![[Page 18]](https://www.wwals.net/pictures/2025-11-06--stop-the-sand-mine-comment-suncoast-parkway-seg-2/small/From-J-Coutu-Geotech-Hydro-Mitigation-Plan-reduced-file-size-2-0018.jpg)
![[Page 19]](https://www.wwals.net/pictures/2025-11-06--stop-the-sand-mine-comment-suncoast-parkway-seg-2/small/From-J-Coutu-Geotech-Hydro-Mitigation-Plan-reduced-file-size-2-0019.jpg)
![[Page 20]](https://www.wwals.net/pictures/2025-11-06--stop-the-sand-mine-comment-suncoast-parkway-seg-2/small/From-J-Coutu-Geotech-Hydro-Mitigation-Plan-reduced-file-size-2-0020.jpg)
![[Page 21]](https://www.wwals.net/pictures/2025-11-06--stop-the-sand-mine-comment-suncoast-parkway-seg-2/small/From-J-Coutu-Geotech-Hydro-Mitigation-Plan-reduced-file-size-2-0021.jpg)
![[Page 22]](https://www.wwals.net/pictures/2025-11-06--stop-the-sand-mine-comment-suncoast-parkway-seg-2/small/From-J-Coutu-Geotech-Hydro-Mitigation-Plan-reduced-file-size-2-0022.jpg)
![[Page 23]](https://www.wwals.net/pictures/2025-11-06--stop-the-sand-mine-comment-suncoast-parkway-seg-2/small/From-J-Coutu-Geotech-Hydro-Mitigation-Plan-reduced-file-size-2-0023.jpg)
![[Page 24]](https://www.wwals.net/pictures/2025-11-06--stop-the-sand-mine-comment-suncoast-parkway-seg-2/small/From-J-Coutu-Geotech-Hydro-Mitigation-Plan-reduced-file-size-2-0024.jpg)
![[Page 25]](https://www.wwals.net/pictures/2025-11-06--stop-the-sand-mine-comment-suncoast-parkway-seg-2/small/From-J-Coutu-Geotech-Hydro-Mitigation-Plan-reduced-file-size-2-0025.jpg)
![[Page 26]](https://www.wwals.net/pictures/2025-11-06--stop-the-sand-mine-comment-suncoast-parkway-seg-2/small/From-J-Coutu-Geotech-Hydro-Mitigation-Plan-reduced-file-size-2-0026.jpg)
![[Page 27]](https://www.wwals.net/pictures/2025-11-06--stop-the-sand-mine-comment-suncoast-parkway-seg-2/small/From-J-Coutu-Geotech-Hydro-Mitigation-Plan-reduced-file-size-2-0027.jpg)
![[Page 28]](https://www.wwals.net/pictures/2025-11-06--stop-the-sand-mine-comment-suncoast-parkway-seg-2/small/From-J-Coutu-Geotech-Hydro-Mitigation-Plan-reduced-file-size-2-0028.jpg)
![[Page 29]](https://www.wwals.net/pictures/2025-11-06--stop-the-sand-mine-comment-suncoast-parkway-seg-2/small/From-J-Coutu-Geotech-Hydro-Mitigation-Plan-reduced-file-size-2-0029.jpg)
![[Page 30]](https://www.wwals.net/pictures/2025-11-06--stop-the-sand-mine-comment-suncoast-parkway-seg-2/small/From-J-Coutu-Geotech-Hydro-Mitigation-Plan-reduced-file-size-2-0030.jpg)
![[Page 31]](https://www.wwals.net/pictures/2025-11-06--stop-the-sand-mine-comment-suncoast-parkway-seg-2/small/From-J-Coutu-Geotech-Hydro-Mitigation-Plan-reduced-file-size-2-0031.jpg)
![[Page 32]](https://www.wwals.net/pictures/2025-11-06--stop-the-sand-mine-comment-suncoast-parkway-seg-2/small/From-J-Coutu-Geotech-Hydro-Mitigation-Plan-reduced-file-size-2-0032.jpg)
![[Page 33]](https://www.wwals.net/pictures/2025-11-06--stop-the-sand-mine-comment-suncoast-parkway-seg-2/small/From-J-Coutu-Geotech-Hydro-Mitigation-Plan-reduced-file-size-2-0033.jpg)
![[Page 34]](https://www.wwals.net/pictures/2025-11-06--stop-the-sand-mine-comment-suncoast-parkway-seg-2/small/From-J-Coutu-Geotech-Hydro-Mitigation-Plan-reduced-file-size-2-0034.jpg)
![[Page 35]](https://www.wwals.net/pictures/2025-11-06--stop-the-sand-mine-comment-suncoast-parkway-seg-2/small/From-J-Coutu-Geotech-Hydro-Mitigation-Plan-reduced-file-size-2-0035.jpg)
![[Page 36]](https://www.wwals.net/pictures/2025-11-06--stop-the-sand-mine-comment-suncoast-parkway-seg-2/small/From-J-Coutu-Geotech-Hydro-Mitigation-Plan-reduced-file-size-2-0036.jpg)
![[Page 37]](https://www.wwals.net/pictures/2025-11-06--stop-the-sand-mine-comment-suncoast-parkway-seg-2/small/From-J-Coutu-Geotech-Hydro-Mitigation-Plan-reduced-file-size-2-0037.jpg)
![[Page 38]](https://www.wwals.net/pictures/2025-11-06--stop-the-sand-mine-comment-suncoast-parkway-seg-2/small/From-J-Coutu-Geotech-Hydro-Mitigation-Plan-reduced-file-size-2-0038.jpg)
![[Page 39]](https://www.wwals.net/pictures/2025-11-06--stop-the-sand-mine-comment-suncoast-parkway-seg-2/small/From-J-Coutu-Geotech-Hydro-Mitigation-Plan-reduced-file-size-2-0039.jpg)