Looks like there is ample room for improvement in the Solid Waste Open Dump Consent Order on Dwight Caton in Berrien County, GA 2025-12-22.
If anyone sees any creek or river contamination that might be coming from any of these sites (on Paul King Road, Luke King Road, or Whitley Tucker Road), please let WWALS and GA-EPD know.
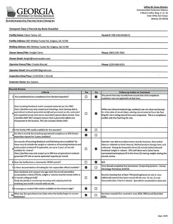
Notice of Violation, Caton Farms, LLC, Permit No. PBR-010-0020(CO), 2026-02-19
Georgia
DEPARTMENT OF NATURAL RESOURCES
ENVIRONMENTAL PROTECTION DIVISIONJeffrey W. Cown, Director
Southwest District
2024 Newton Road
Albany, Georgia 31701
229-430-4144February 19, 2026
Mr. Charles Kincaid, Operator
Caton Farms, LLC
tkincaid1967@gmail.comRE: Notice of Violation
Caton Farms, LLC
Permit No. PBR-010-0020(CO)
Berrien County, GeorgiaDear Mr. Kincaid:
A routine compliance inspection was conducted at the above referenced composting facility by representatives of the Georgia Environmental Protection Division on February 10, 2026. This Notice of Violation is issued to Caton Farms, LLC for deficiencies with regard to the referenced Permit and the Georgia Rules for Solid Waste Management (Rules). The enclosed Compost Class 2 Permit-by-Rule Checklist notes three (3) deficiencies, which are listed below for your review and attention:
- Permit Condition 3 (xi)—Facilities accepting Category B feedstocks from offsite shall track incoming feedstocks and finished compost. Records documenting compliance of the composting facility with these Rules shall be kept for a minimum of three years in a form suitable for submission to or inspection by the Division. Records shall include the weight or volume (in tons or cubic yards) of the feedstocks accepted, total compost produced, and any amount sold or used. Some records were incomplete at the time of the inspection.
- Permit Condition 3 (vii)—By the end of each operating day, all incoming Category B feedstock must be processed into the active composting area, transferred to leak- proof containment, or mixed with bulking material and covered in a manner that minimizes nuisance odors and scavenging by vectors. Soybean material (Category B feedstock) is stored without being mixed or covered to minimize odors or vectors.
- Permit Condition 3 (ix)—Storage of finished compost on site is limited to 12 months, unless approved by the Division on a case-by-case basis. During the inspection, windrows observed from the previous February 18, 2025 inspection were observed again. Unclear records and relatively unchanged site conditions indicate that feedstock is not being composted in a timely manner and remains accumulated speculatively.
Please submit a corrective action plan within thirty (30) days of this dated letter. If you have any questions or concerns regarding the inspection, please contact this office at (229) 430-4144.
Sincerely,
[signed]
Serena A. Broska, E.1.T.
Program ManagerSAB/ns
Enclosure: Compost Class 2 Permit-by-Rule ChecklistCc: Solid Waste Compliance (solidwaste.reports@dnr.ga.gov)
Dwight Caton, Property Owner (dwight@marsrecylers.com)
Sarah Knapp — Recovered Materials Unit Manager (sarah.knapp@dnr.ga.gov)
SW Files — Caton Farms, Berrien County
Please submit a corrective action plan within thirty (30) days of this dated letter.
PDF
Compost Class 2 Permit-by-Rule Checklist
PDF
East of Paul King Road, 2025:09:04 09:09:34, –GA-EPD 31.2684333, -83.2453083
-jsq, John S. Quarterman, Suwannee RIVERKEEPER®
You can help with clean, swimmable, fishable, drinkable, water in the 10,000-square-mile Suwannee River Basin in Florida and Georgia by becoming a WWALS member today!
https://wwals.net/donations/
Short Link:

![[Three deficiencies]](https://www.wwals.net/pictures/2026-02-19--caton-inspection/Caton-Farms-LLC-Permit-PBR-010-0020-CO-0001.jpg)
![[Page 4]](https://www.wwals.net/pictures/2026-02-19--caton-inspection/Caton-Farms-LLC-Permit-PBR-010-0020-CO-0004.jpg)
![[Page 5]](https://www.wwals.net/pictures/2026-02-19--caton-inspection/Caton-Farms-LLC-Permit-PBR-010-0020-CO-0005.jpg)
Pingback: Solid Waste Open Dump Consent Order on Dwight Caton in Berrien County, GA 2025-12-22 | WWALS Watershed Coalition (WWALS) is Suwannee RIVERKEEPER®